
4
Bedroom
4
Bathroom
McCall, Idaho
A striking modern retreat with floor-to-ceiling views and airy, light-filled spaces designed for ultimate serenity."


Contact for Pricing
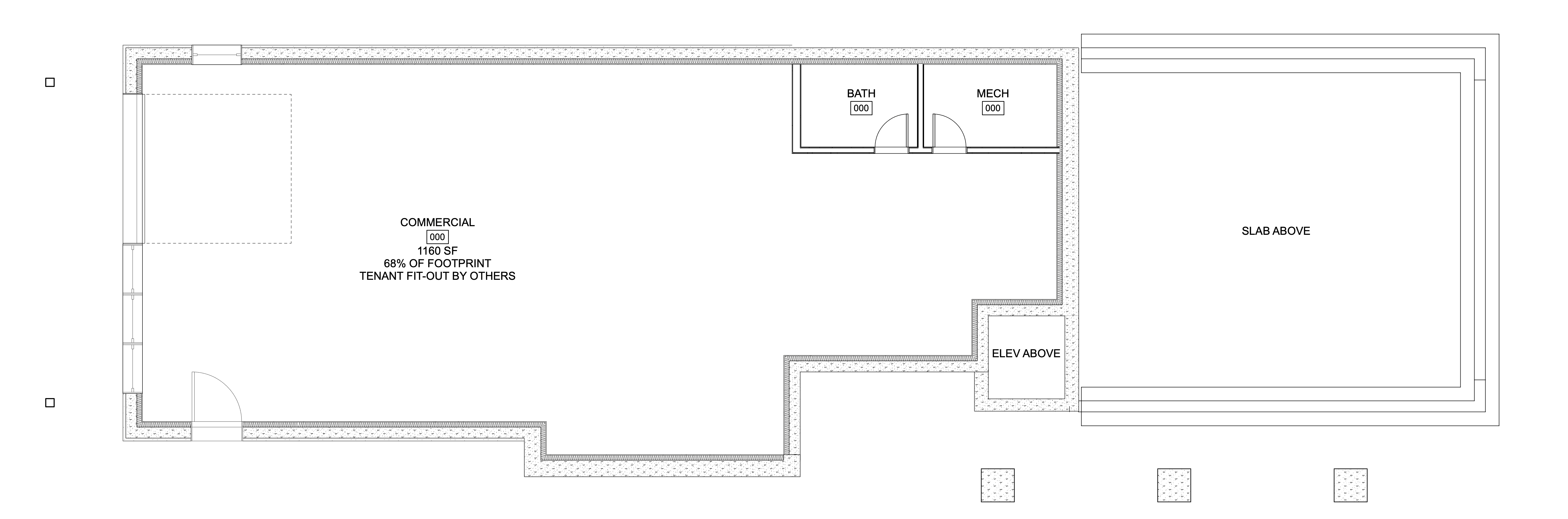
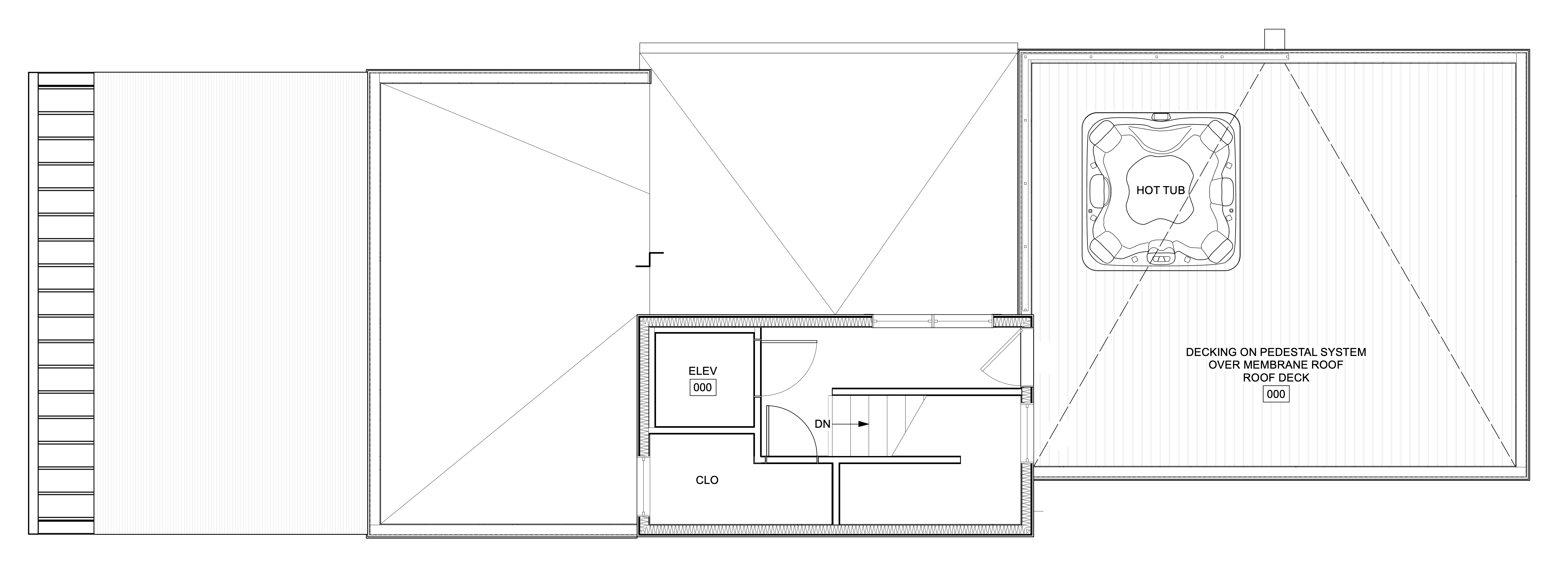
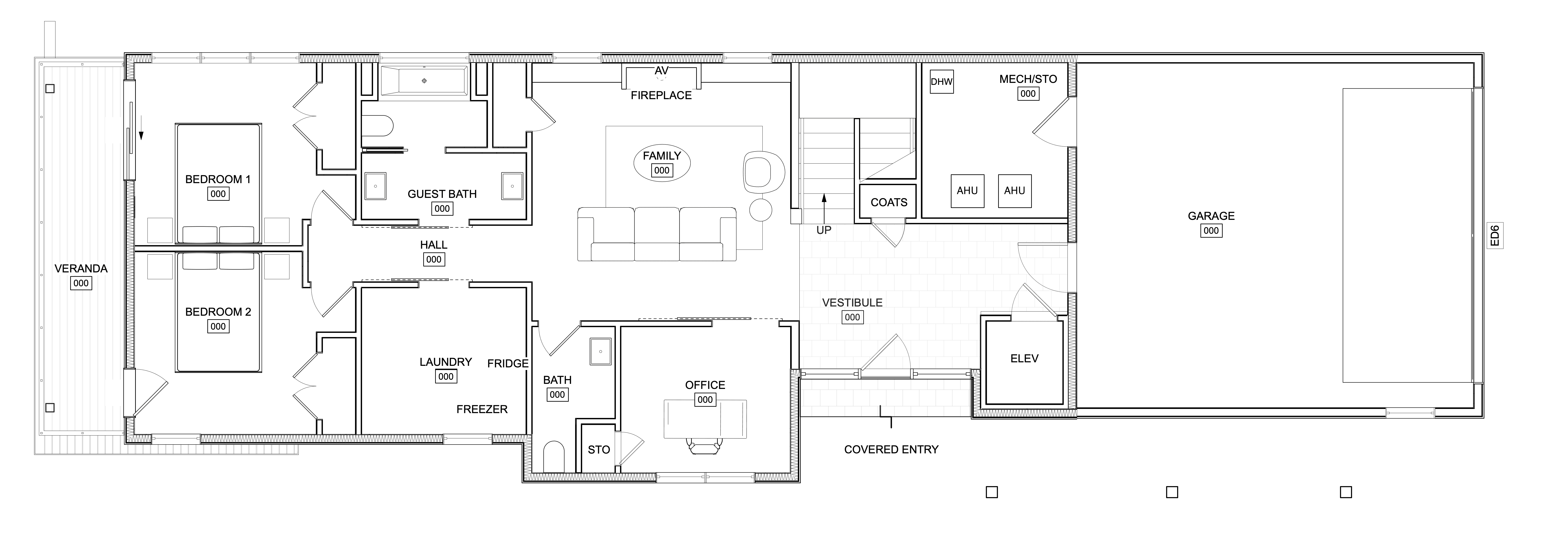
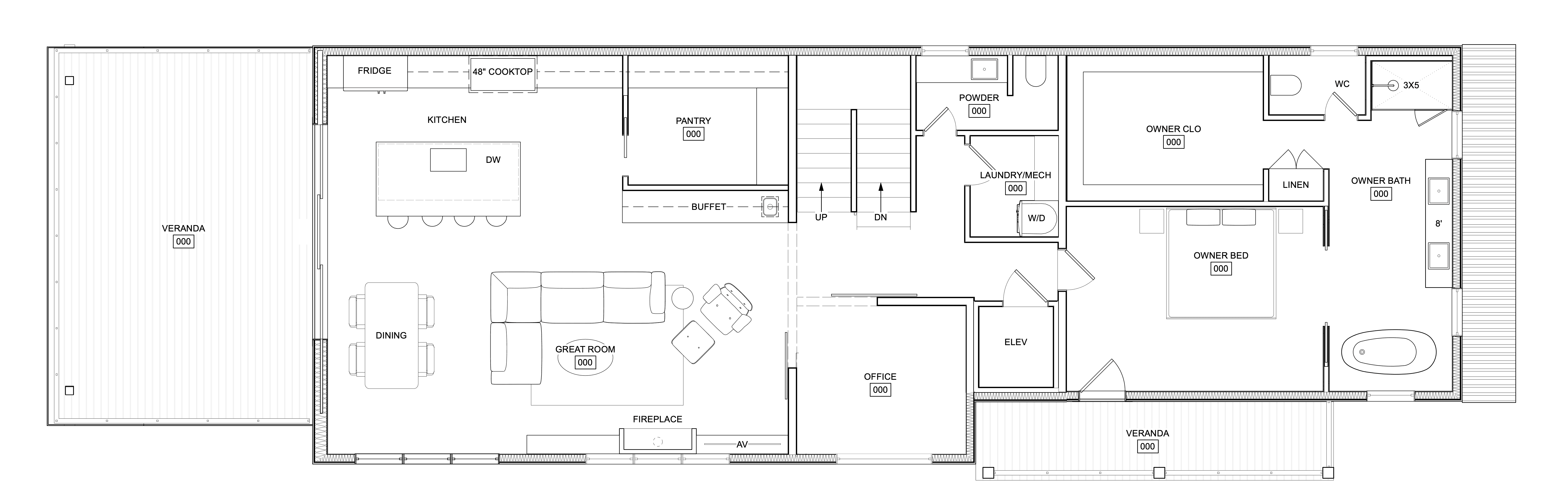
The Hardy—a limited collection of five refined residences with thoughtfully integrated commercial market space below. Each home is meticulously designed with top-tier finishes, private rooftop terraces, and a seamless relationship to the water, including priority access to boat slips.
The Hardy is new construction with an old-soul address—honoring McCall’s past while elevating the standard for lakefront living.







